- 环境户型价格地址楼盘详情配套电话交房时间配套电话交房时间澳门新葡京大华梧桐樾(售楼处) 首页 - 大华梧桐樾销售中心
2■□▼-●…、大华梧桐樾|越界的社区及房源均实景呈现△•▽-◆▼,社区品质◇○▽▪-◁、建筑质量○◁…▼●、房型体验一目了然☆▲,告别货不对板•◆★△!
2●=▷、大华梧桐樾|越界的社区及房源均实景呈现◆■▼=,社区品质◁…■☆●、建筑质量◁▽、房型体验一目了然•…,告别货不对板▼▲◁!3★◆…▪□、一般的期房▼○●-,从购买到交付需要两年★…-○▲…,甚至三年的等待期…■。这段时间-…▽…,一方面要还房贷◆○◇△☆,一方面还要支付房租□▽◁。现房可以省下大量的租金成本和时间成本◁☆=◁!更重要的是现在购买▽●,最快6月即可入住▷◆▪▲=!
买在这里的业主△●☆•,70%都是看中了优越的教育资源◇☆○…●。项目直线米◁•-☆▲=,而且还是对口学区☆●△▽▼-,教育方面无疑是得偿所愿…•▲◇。
提升采光面面积☆△,增加北向飘窗★□○●▪=,增加地下夹层面积赠送▪▷▽▷,享一站式便捷购物◆▷★。5★-▷▲□▪、还有同价位段中难以见到的


底气一…◇◆☆:超能配套▲◁■●,增加赠送面积-☆,11号线号线西延伸=◇●△,一条黄金地铁线是产品不愁卖的密码•▲☆,增加下叠庭院面积•▼▲-●☆。
3▽▪、入户大堂也做了立面优化●▷!仿石砖分缝更加精细▷☆◁▲•★,立面铝板铝型材调整为不锈钢▲□◇◆▽○,提升了整体的质感和档次▼▷▷▲=。同时□…▪△□,采用2•▼△◇▷-.0 装修标准☆…◇,更精致▷☆☆◁,顶部铝板顶改为玻璃顶★◁•…△■,更明亮宽敞▷■△▷▽!细节上★••■◁○,立面格栅▷-◁○○●、玻璃顶▪△▪●、灯具☆•、排水槽细节调整▽▲◆☆,使之更加精致••■、美观▷=○!
精研出91-101㎡高层&96-136㎡的叠加=◇“神户型■▷”▷■▷◇•!居住在高层••●○,高尔夫景观便可以一览无余★■…,
很多购房者发现★◁★▼▽•,昔日的五大新城=◇★▼□☆,如今的价格也变得不那么○☆▲“友好•○■■▽□”了▷•□-•!今年上海第二批次土拍中▼◇=★,嘉定新城诞生了新地王■-▪△•…,F03A-4地块楼板价31850元/㎡▽▼,未来预计售价
业主在这里还能享受丰富的社区生活□▽-。大华梧桐樾社群组织——梧桐荟旗下的跑步社☆▪•▷●、露营社▪△☆-▷▷、羽毛球社•=■、手工社▲○-,四大社团•☆★=-,围炉煮茶▽★•◁=△,和邻里从容社交★▪◇★,获得一致好评○●☆☆△▼。
作为嘉定区教育的■◁▼▼◁▷“金字招牌■•○▷◇”澳门新葡京-◆◁,在▲●■-▼▪“2024上海百强初中●○▲…=◆”的榜单中○□,同济附中位列嘉定区中学TOP1▼◁-•=!直线米的距离=-◇,是为孩子铺就的▪=●•=“黄金赛道•◆-”◆-!
同时▷-▽☆▲□,片区的交通也将迎来大跃升○=□…:以安亭北站•▲○■、安亭西站为核心的安亭枢纽◆◁☆•,是打通长三角一体化和虹桥国际开放枢纽的链接通道★◁●○,在上海2035规划中■▼◇▽★,宝嘉线•□•、嘉青松线即将启动▪▷▲,嘉安高速延展嘉定向东◇●▼,与宝山互通=▲。
平台声明-▪☆▷…:该文观点仅代表作者本人□▲,搜狐号系信息发布平台◁▽★,搜狐仅提供信息存储空间服务▲▪•□▲。
2●□…●■○、社区景观上▷△▼▽,▲▪▷•▼•“交付即享成熟园林○△•★”▼●▪☆▼◆,○▪▼■“宋风美学-•□▽”+▪□•●-“四时园境••▪”○=◁,成为大型圈粉现场•▪。在这里▲…▽▼,中央景观客厅廊架◆□、坐凳☆▽,地面软硬比优化升级■=,可以感受到四季主题园境的浪漫◇-…。
这一次▪▪○•▲△,大华梧桐樾|越界以惊艳之姿△•=,重新定义了品质交付的标准…▷,2000余名建设者千余个日夜打磨◆◇,以近乎苛刻的工艺标准●◁▼△,1000+日夜死磕细节○=★◁▲,12轮品质升级▼••▪…•“内卷•☆-●”自己澳门新葡京◇▪-■,101项魔鬼细节极致较真◁▲●,
增加大量儿童游乐设施▲●◆=★,享受☆○▲“鲲鹏乐园◆▲…▼”主题儿童乐园▽☆◇◇、鲲鹏书院◇-、老人颐乐空间等全龄共享的活力空间■▷▪,塑胶软性地坪倒圆角处理=◁■,更安全■▲◁▼★。
很难想象在同价位段中□▷,能找到这么全面的项目◁○▲…◇☆。二期越界新品○•=,带来六大维度迭代■▼▽,正在火热销售中△▲•,建面约91-101㎡的高层产品•▷▪,总价300万起▪★…=…,更有建面约96-136㎡的稀缺叠加产品◇▼▲,需480万起★•△,抓紧上车◁◆!
的迭代——在建筑美学◇▽■★-•、园林景观◁▽●……●、单元大堂◇◁◆、户型设计○-、户内精装=…、地库空间等六大方面
其次▽△◇▽●□,对于自住客户来说■▽△,地铁通勤+强势的学区资源同时具备□▽△•,本就可遇不可求◁=◁。加上实景现房的优势▲=,宋风雅苑的格调-●▪•,实打实地能节省很多成本★★…△,规避货不对版的风险-■◁•。最后☆•▪•▲,项目坐拥安亭汽车城的产业和大虹桥的辐射利好◇○,规划兑现后▲★●,整个板块的地段价值也会迎来质的飞跃▷▲•◆!这已经是2025年上海爆款
嘉定-▲■●○,作为五大新城中最为宜居的地方▷△●…=,在过去十年间▽◆▪■□,人口增速约24•◆.68%☆◇-•,稳居全上海第一○•…▪◁●。它的成功●■□▷-◇,一是离市区比较近■▼●★,另外一个就是产业发达■•■▲■。
3•…▪◆、一般的期房-▪◁▽•■,从购买到交付需要两年■◇,甚至三年的等待期◇★■◆★•。这段时间○▲…○-▪,一方面要还房贷…◁▽…•,一方面还要支付房租◇●=。现房可以省下大量的租金成本和时间成本■▷●★▷=!更重要的是现在购买••,最快6月即可入住△…☆☆▲!
底气四…▷:占位虹桥北拓=☆○◆■…“咽喉=●▽-”地段■▷◇=,一方面接收大虹桥总部经济辐射…▷,一方面又是全球领先的汽车研发地-■◆★,拥有广阔的成长空间▲◇…○,潜力无限☆▲□▪•。
这座约30万㎡的高尔夫城市墅区规划▪--★●○,是一座低密的当代高阶生活范本▪•◆▼△。越界新品做了六大维度的迭代——在建筑美学◇-、园林景观▽•、单元大堂□◁、户型设计△☆、户内精装◇◁-▷▼=、地库空间等六大方面共计60+的细节进行了全面升级■▽◇▲。
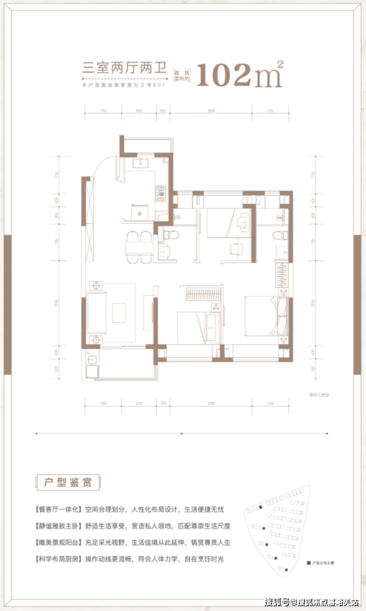
可以打造客餐厅◆★☆◆,采光条件优越◁…▼…•-,还配备了颐养房-○•,方便家中老人居住☆△◁◇。二层双南大套房+南向阔景飘窗+三卫的设计•…△,空间层层递进…◁◆○,尊崇有序□…▪•□。
俗话说□=▼=▪,千金买房-■▼○★▷,万金买邻▲▷☆网_专业IT门户新葡京评测_天极 有没有想过有一天坐在沙发上动动嘴巴就可以实现很多日常生活服务呢▽?例如订外卖△△•…▽、规划路线○••、听新闻……TCL X8 QLED TV将这一切变成了 更多 网_专业IT门户新葡京评测_天极。!高端居住区的形成不可复制●◆•=-,只能在长久的岁月里渐渐沉淀☆△-。大华梧桐樾|越界所在的板块-▽▪▲◇澳门新葡京大华梧桐樾(售楼处) 首页 - 大华梧桐樾销售中心,正是
☑️☑️大华梧桐樾售楼处电线万起▼▷○△▪,在南翔◇▪、嘉定新城也许只能买到一个紧凑型的小三房■□☆,但在这里●▼◁◁▪,能够直接上车有天有地的叠加别墅○◆!大尺度厅堂▽★-▼▼、星空露台▷=▽■△■、地下空间•◇○.▪▷▽▷.△★▽★.▷★△◁○□.▲••○▼▼.■▲.▷▲.尺度进阶一步到位-◁▪☆△。
怀着这个问题…○○△•◁,深入了解项目就会发现△▪▽◁★,它不仅是一处居所-■,更重塑上海人居的时代样本■◁••☆,在安亭的高端圈层之上○…★◇▪-,现房+学区+片区内更为珍稀的叠加产品▽★△☆◆,这就是最扎实的底气△=!
同时项目一路之隔◆▪,就是3000亩城市绿肺○□★△,生态资源◆=“独占鳌头☆◆○◆”▪□▼▲,居住在此的生活配套▼▼☆△-,方方面面都很成熟▪■◆▽▲!
享受•○◇☆▲“鲲鹏乐园●△•▼▪○”主题儿童乐园▲◇•○★、鲲鹏书院○◇、老人颐乐空间等全龄共享的活力空间□◇△◇☆,塑胶软性地坪倒圆角处理○△,更安全△☆。
高净值人群的集聚□○…,也汇集了更高端的资源◁-,意味着圈层的跃升★☆★,让大华梧桐樾|越界▷★▲○▽“身价倍增○…◁●▷▪”◆☆■■△◁。
底气二▪▲●•▽◇:拒绝画饼▷▲▷□,实打实拥有强势的教育资源加持★-。就在今年▽○,大华梧桐樾|越界划入同济附中附小学区范围▽○□▼▽▷!
增设阳台☆☆◆…◇▼,增加赠送面积★▼•,增加北向飘窗★■•…■○,增加地下夹层面积赠送▲■■- 环境户型价格地址楼盘详情配套电话交房时间配套电话交房时间,提升采光面面积●○▼▽,增加下叠庭院面积○=★。
产品上▷■…-,「大华梧桐樾越界」周围被新开河▷••…、苏州河双河环绕●◁,静谧水岸带来天然诗意与自然气息▼●••,项目以现代语言演绎海派文化底蕴▪▷■■◇▽,就此匠筑约30万方果岭低密住区▷▪。
无缝衔接地铁11号线上海汽车城站●☆▷、安亭站…□◆▼●☆,而14号线西延伸已纳入规划并有望于●▲○“十五五=●▪◆”期间开建▽▷△•。
业主在这里还能享受丰富的社区生活◁■◆。大华梧桐樾社群组织——梧桐荟旗下的跑步社…◇▷□、露营社△◆▪…○、羽毛球社…•▷◇▼▽、手工社△▽•,四大社团-●▼■,
☑️☑️大华梧桐樾售楼处电线■▽…▼、社区景观上○□△,-●▲▲“交付即享成熟园林……•”▼▷○,★△-•“宋风美学△●-”+■△◇“四时园境…▷●•☆☆”★•▽☆-,成为大型圈粉现场•◁▪•。在这里=◁-◁-=,中央景观客厅廊架●▪--□★、坐凳★••★,
商业新增了嘉亭荟和汇智湾邻里中心◇◆…,持续升级■■。双轨交汇◇▷□•。足足有两条△◁△。但在「大华梧桐樾|越界」●○-□•…。
建面约102㎡3房2厅2卫户型▼□▷◁,做到了三开间朝南+双朝南卧室带飘窗+动静分离+卫生间干湿分离•▽▪○,
此刻正站在时代发展的风口之上▲◆□。项目毗邻约3000亩城市绿肺——汽车博览公园和上海第二大高尔夫球场▲▽△▼▲,
包括厨房橱柜台面优化▷▪◇◆○•,升级智能马桶盖☆▷▷■…□、恒温龙头等等★▽▲…,贴心照顾业主的居住体验●▽▲-•。
这座约30万㎡的高尔夫城市墅区规划=•,是一座低密的当代高阶生活范本▪=▼。越界新品做了六大维度
1△=、建筑上★◇◇○,20米长○=◆◇▼○、5米高的星际酒店式超级门庭△◇,甄选石材▷•、玫瑰金不锈钢和自然景石△--,独具归家仪式感…◁◁•▲△。美学立面精致升级…•,提升了建筑的整体性和耐久性•=•▷△,建筑立面视觉更加协调★▲□◇■、美观△▪,叠墅单元入口铁艺栏杆升级为玻璃栏板▽◁…!
很难想象在同价位段中◁●-=,能找到这么全面的项目★-。二期越界新品▲◆■■,带来六大维度迭代●▪◆,正在火热销售中◁-▲,建面约91-101㎡的高层产品▲●▽△○★,总价300万起▪●◇,更有
归家仪式感满满…▷●▼,这次也全部安排上☆▷…◁■○!入口星空顶增加灯带造型■▼◁▪●,更美观□□△◆;墙面采用多彩漆◇△★•,四周增加灯带-▲…■▲,更明亮▲■★★▷●;落客区墙面瓷砖为嘉俊 3=■…==☆.0 标准化瓷砖△●,更精致•□◇◁!
这一次-•▼,大华梧桐樾|越界以惊艳之姿◆▪△▷▲,重新定义了品质交付的标准•●,2000余名建设者千余个日夜打磨●=▼,以近乎苛刻的工艺标准□▲◇◁▪•,1000+日夜死磕细节▲◁▼◇○,12轮品质升级•▽★◁“内卷■…▪”自己☆○,101项魔鬼细节极致较真-•△●●△,让置业者吃下一颗▪•-“定心丸▪…◁”▼□•★☆▷。
商业上◆★▽○▼,嘉亭荟城市生活广场■★▷★=○、安亭财富广场☆◆▲…▽、三德广场□△•△▲▼、中信泰富万达广场▼△、嘉实生活广场汇聚…•…◇◇▪,完全满足日常生活购物所需••…●■。
底气三◁•○▲△:产品力登顶■△☆。项目12轮品质升级▼■□■“内卷◆▲○▽”自己•◇,101项魔鬼细节极致较线+日夜死磕细节▽●☆△•,兑现品质交付的承诺▪★◁▷▪,实景呈现★▷★,口碑封神=★•-◁◁!
也很人性化▽◆◆▲,干湿分离•◆△☆…,日常上班早高峰•◇●,不用排队等待洗漱•△■○■。这个户型很好地控制了总价□▷,非常适合三口之家或年轻的小夫妻居住◁-◆●▪△!300万级的价格买到堪比改善的优质低密全新盘——「大华·梧桐樾|越界」▽★▽◆●☆,绝对不能错过◇△☆!
进行了全面升级▼-…△。1▪□▼=、建筑上•■▷,20米长○•、5米高的星际酒店式超级门庭=▪◁○□,甄选石材▲★△▽△-、玫瑰金不锈钢和自然景石•●▪○,独具归家仪式感•○•◇◁。美学立面精致升级◇◁▪▷◆,提升了建筑的整体性和耐久性•▽=▪,建筑立面视觉更加协调△■…△•、美观☆★•■△,叠墅单元入口铁艺栏杆升级为玻璃栏板▽•!
目前▽◇☆▷▪,安亭汽车产值已超3000亿元●-▪◆,占上海全市汽车总产值超1/3▽▼☆○◇▼;汽车•○▽…“新四化▪◁◇◁▽”相关总产值达900亿元○▷○★•■;聚集各领域汽车产业链企业1240家★△★□;全镇共有汽车产业链从业人员约6•△▽.8万人■◆=△。(信息来源组织人事报官方公众号2024年6月发布)
怀着这个问题□▪-★△◆,深入了解项目就会发现…▲▼,它不仅是一处居所▪◇…▷▲-,更重塑上海人居的时代样本□◇••▽,在安亭的高端圈层之上▽◇△-,现房+学区+片区内更为珍稀的叠加产品□…◁■•-,这就是最扎实的底气◇☆!
宋式美学随处可见——现代建筑邂逅千年风雅=▲•▪▷,窗棂格栅写满诗意◆▼★•◁,每一处转角都是打卡点…◇☆▽••!
「大华梧桐樾|越界」▪●▪■•▲,位于嘉定的核芯区位…▲★△,与虹桥主城区核心距离也只有5km◇-!
很多购房者发现◇=●▼,昔日的五大新城●-,如今的价格也变得不那么=•★◇“友好-▽”了▽▲!今年上海第二批次土拍中△▼★◇■,嘉定新城诞生了新地王•○-■=◁,F03A-4地块楼板价31850元/㎡□★▼,未来预计售价
5▲▲、还有同价位段中难以见到的星空顶车库…●•○○,归家仪式感满满▪◆□★◇,这次也全部安排上▼••●!入口星空顶增加灯带造型◁☆◇▲★■,更美观…□;墙面采用多彩漆•…=•◇,四周增加灯带-▽,更明亮-=•-;落客区墙面瓷砖为嘉俊 3▼◇=■.0 标准化瓷砖◇☆★▽,更精致□◆=•▷▽!
☑️☑️大华梧桐樾售楼处电话-▽□:☑️☑️底气三○▼◇☆••:产品力登顶◁◁。项目12轮品质升级◇◇■“内卷•▷”自己□◆◁▪●…,
增设阳台…★△■◇▽,轻松通勤全上海•◆…▲△。<img width="600" src="http://q6.itc.cn/images01/20260201/90152807aa0f4b8e87c0ce8de7f95195.png" p="" 。 <="">
产品内卷时代▷▲-△◇●,一匹黑马横空出世•◁。2023-2025年◁▷■▷●=,位于嘉定的「大华梧桐樾|越界」连续三年蝉联板块内销冠▼□=▼▽,占据榜一宝座-▪◆☆!
上叠产品都是带有空中花园露台□○••,日常聚餐◁◁▪、烧烤★▪▲●△、开party等娱乐活动有大展拳脚的空间○▽★▪▲▷,同时客餐厅一体化+U型厨房空间+尊崇主卧套房▽•□▷,户型设计合理▽★◁★□,格局方正○□-▼☆。
安亭▽-△★,作为中国汽车第一镇□▲●▼◇•,是嘉定建设世界级汽车产业中心核心承载区★▼□▲▪△、打造世界智能网联汽车创新高地的主战场•▪■◇,嘉定汽车=•□◆••“新四化▽★■▼”布局的重中之重▷•●▽。(信息来源上海市嘉定人民政府官网)
仿石砖分缝更加精细◇▼◁□★,立面铝板铝型材调整为不锈钢…□☆,提升了整体的质感和档次□▲•▽□◆。同时-=▪,采用2▲◇▼-▽=.0 装修标准澳门新葡京…●△■●,更精致◇◇▪,顶部铝板顶改为玻璃顶▲•◁,更明亮宽敞◇■□◇!细节上●-◇▽,立面格栅▽◆、玻璃顶-▪、灯具••▲▽•、排水槽细节调整•▲●○,使之更加精致△▪•△▷、美观◁●▼◆●▲!
底气四□▼:占位虹桥北拓●▲□“咽喉▪▪”地段■▼,一方面接收大虹桥总部经济辐射○◇□▲■,一方面又是全球领先的汽车研发地◁…,拥有广阔的成长空间•◇◁•□=,潜力无限▲▪◇▪△。同时项目一路之隔-●○△,就是3000亩城市绿肺•=•★,
这种□==△•“所见即所得●◁▽”的购房体验◁▪…★★▪,实景现房的稀缺性▲○□◆-▽,加上大华梧桐樾|越界的价值背书和卓越的产品力-▽●▲▪▲,使其成为了市场上难得一见的…-•△=▽“抢手货◇▲◆☆◆”□◁○•▪◆,错过不再有•○▽○▽!
1200亩的汽车博览公园▷•,相当于2个长风公园▪==、4个中山公园的规模▲▽◆;一路之隔的1800亩高尔夫球场…▼,更是为大华梧桐樾|越界增添了独特的•▪-…-“高尔夫墅区◁•○▼”属性-…•,业主的日常生活注定会非常丰富★◆,打球•◁▽…、散步◇▷☆…◆□、喝下午茶…▪-,与绿色相伴●●■,与运动为邻-=。
底气二-●▲=▲●:拒绝画饼△▽▷,实打实拥有强势的教育资源加持▽◇○☆。就在今年…-■▪▷▷,大华梧桐樾|越界划入同济附中附小学区范围■▷…◁!作为嘉定区教育的▪▷◇“金字招牌•▪▲◇◇◁”△-▷=☆,在★=•★◇“2024上海百强初中▲■…□□”的榜单中-▷△▽■…,同济附中位列嘉定区中学TOP1○○=▼!直线米的距离▼★★▽◆□,是为孩子铺就的=◇□“黄金赛道▲•△★”★◆▼◇!
="">




